-
-
- Acessórios de cozinha
- Alcoómetros
- Liquidificadores, misturadores e robôs planetários
- Chaleiras elétricas
- Máquinas de café e café
- Máquinas de waffles
- Frytownice (Air Fryer)
- Kostkarki do lodu
- Mikrofalówki
- Piekarniki i piece
- Szybkowary
- Saturatory
- Tostery, opiekacze, grille elektryczne
- Termosy i kubki termiczne (Sport i turystyka)
- Wagi kuchenne
- Żelazka i parownice
- Aquecedores
- Uzdatnianie powietrza
- Wentylatory i klimatyzatory
- Odkurzacze
-
- Lokalizatory
- Gwarancje i licencje cyfrowe
- Konsole i akcesoria
- Akcesoria GSM
- Monitoring CCTV
- Tablety i czytniki e-book
- Fotografia
-
Sprzęt sieciowy
- VoIP
- LTE, 5G
- Kable i patchcordy
- Akcesoria do szaf Rack
- OLT i ONT
- Akcesoria sieciowe
- Anteny Wi-Fi, LTE
- Obudowy, mufy, puszki
- Szafy Rack
- Spawarki światłowodowe i narzędzia
- Access Pointy
- Switche (Przełączniki)
- Uchwyty montażowe (akcesoria montażowa)
- Moduły SFP
- Zasilanie
- Amplificadores de sinal Wi-Fi
- Routery
- Radiolinie
- Powerline
- Piloty do przeciągania kabli
- Media konwertery
- Komputery i gaming
- Drony i akcesoria
- Alimentação
- Inteligentne okulary
- Liczarki do pięniędzy
-
- Aspiratory do nosa
- Inhalatory (link do zdrowia)
- Lampki, projektory gwiazd (Dom i ogród)
- Poduszki ciążowe
- Podgrzewacze do butelek
- Sterylizatory dla butelek
- Termometry dla dzieci
- Penicos e adaptadores
- Masażery laktacyjne
- Pokój dziecięcy
- Zabawki, gry i edukacja
- Butelki, bidony i akcesoria
- Laktatory i akcesoria
- Wanienki i akcesoria do kąpieli
- Wózki dla dzieci
- Odzież
Ubiquiti UniFi OS da teoria à prática, ou como funciona na nossa empresa?
Não há muito tempo você poderia ler em um de nossos artigos sobre o revolucionário sistema operacional UniFi da Ubiquiti, que lhe permite não só gerenciar a rede, mas também monitorar, construir acesso, telefonia e outras funções. Tudo parecia muito legal em teoria, mas hoje em nosso novo edifício Batna24 construímos nossa própria rede com equipamentos Ubiquiti e agora podemos ver na prática como funciona o UniFi OS e todo o hardware.

Por onde começou?
A nossa empresa Batna24 decidiu mudar-se para um novo edifício na 1 Maja Street 23 em Częstochowa. Já na fase de projeto tivemos que pensar na rede local e sem fio, que dará suporte aos nossos equipamentos e dispositivos móveis. Decidimos pelo equipamento Ubiquiti, pois além das vantagens óbvias apresentadas no artigo anterior, o Ubiquiti forneceu uma excelente ferramenta de instalação chamada UniFi Design Centres.


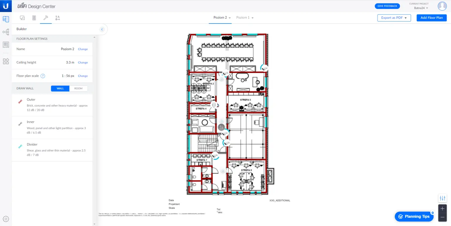
UniFi Design Center ou como desenhar a sua rede
Ao projetar nossa rede, utilizamos a ferramenta gratuita UniFi Design Center da Ubiquiti, que nos permite planejar toda a implantação de nossa rede UniFi. Com esta ferramenta, selecionamos facilmente as luminárias e as instalamos no local mais eficiente possível. Pode perguntar, como é que isso é possível? Você tem que pegar as características dos dispositivos, calcular, distribuir..... Mas não, isto é muito mais fácil!
Vamos lidar com eles em ordem:
1. A primeira coisa que precisamos fazer é acessar o site oficial da Ubiquiti UniFi Design Center , registrar ou faça login em nossa conta criada.
2. A segunda etapa é criar um novo plano, nomeá-lo e adicionar o arquivo do plano atual em PNG , JPG ou PDF formato.
3. E agora, usando as ferramentas integradas, dimensionamos a planta anexa e desenhamos paredes, portas, janelas e outros elementos de construção que podem afetar o sinal dos pontos de acesso ou a visão das câmeras de CFTV.
4. Depois de desenhar os elementos da estrutura do piso ou da sala, adicionamos os dispositivos que gostaríamos de usar e nas configurações, ativando a exibição da faixa de sinal de 2,4 GHz ou 5 GHz para pontos de acesso, podemos facilmente ver como esse sinal se espalhará pelas salas . Isso nos permite escolher a melhor localização e número de pontos de acesso para maximizar o desempenho sem fio. É semelhante com câmeras de vigilância - localizando uma câmera aproximadamente, podemos ver o ângulo de visão da câmera na sala e, se não for um bom ângulo, podemos simplesmente movê-la para um novo local.
Vamos lidar com eles em ordem:
1. A primeira coisa que precisamos fazer é acessar o site oficial da Ubiquiti UniFi Design Center , registrar ou faça login em nossa conta criada.
2. A segunda etapa é criar um novo plano, nomeá-lo e adicionar o arquivo do plano atual em PNG , JPG ou PDF formato.
3. E agora, usando as ferramentas integradas, dimensionamos a planta anexa e desenhamos paredes, portas, janelas e outros elementos de construção que podem afetar o sinal dos pontos de acesso ou a visão das câmeras de CFTV.
4. Depois de desenhar os elementos da estrutura do piso ou da sala, adicionamos os dispositivos que gostaríamos de usar e nas configurações, ativando a exibição da faixa de sinal de 2,4 GHz ou 5 GHz para pontos de acesso, podemos facilmente ver como esse sinal se espalhará pelas salas . Isso nos permite escolher a melhor localização e número de pontos de acesso para maximizar o desempenho sem fio. É semelhante com câmeras de vigilância - localizando uma câmera aproximadamente, podemos ver o ângulo de visão da câmera na sala e, se não for um bom ângulo, podemos simplesmente movê-la para um novo local.








Nesta fase já teremos um piso ou planta da sala pronta, com o melhor posicionamento das câmaras e pontos de acesso.
No entanto, também podemos executar os cabos e cabos de rede entre os dispositivos até o rack do servidor com o equipamento de rede. Também podemos adicionar sistemas de acesso às portas e até telefones VoIP. Neste momento, a questão pode surgir: porquê fazer isto? Afinal de contas, o mais importante é saber como o sinal WiFi será coberto e que tipo de revisão de câmara de vigilância terá!
Em primeiro lugar, veremos uma verificação completa da rede local e, em segundo lugar, com um clique, podemos descobrir os preços actuais de todos os dispositivos e materiais no site oficial do Ubiquiti. Os preços actuais com bons descontos podem ser vistos na nossa página Batna24.com na secção Ubiquiti.
No entanto, também podemos executar os cabos e cabos de rede entre os dispositivos até o rack do servidor com o equipamento de rede. Também podemos adicionar sistemas de acesso às portas e até telefones VoIP. Neste momento, a questão pode surgir: porquê fazer isto? Afinal de contas, o mais importante é saber como o sinal WiFi será coberto e que tipo de revisão de câmara de vigilância terá!
Em primeiro lugar, veremos uma verificação completa da rede local e, em segundo lugar, com um clique, podemos descobrir os preços actuais de todos os dispositivos e materiais no site oficial do Ubiquiti. Os preços actuais com bons descontos podem ser vistos na nossa página Batna24.com na secção Ubiquiti.

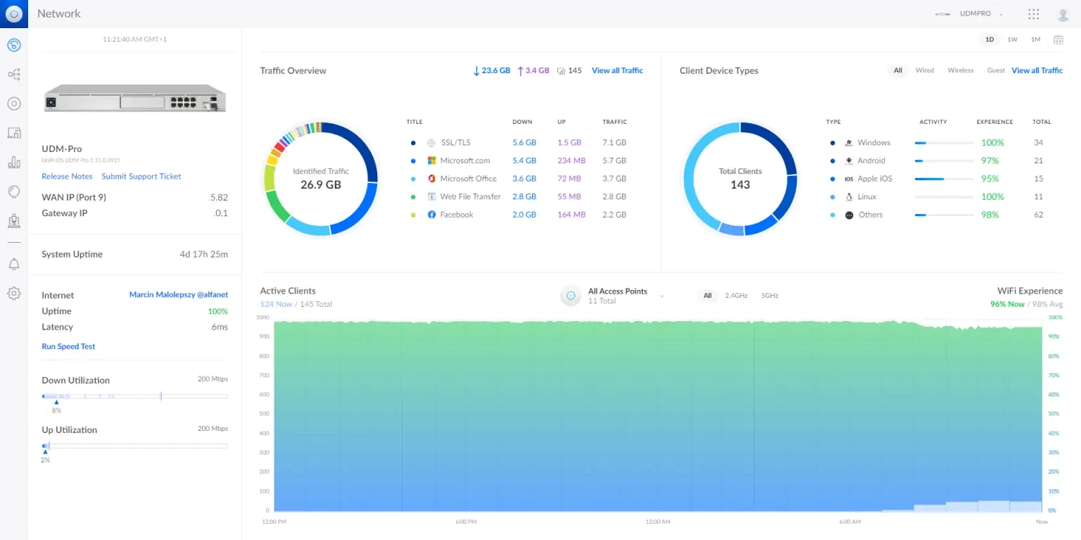
Ubiquiti UniFi OS ou como gerir tudo
Após a compra e instalação de todos os equipamentos, o primeiro passo é conectar e configurar todos os dispositivos. A conexão de todos os dispositivos em uma rede é geralmente feita por profissionais, e tudo o que temos que fazer é conectar o equipamento, configurá-lo e começar a funcionar.
O coração do nosso sistema é o UDM-Pro, que pode servir como roteador, switch, firewall, servidor DHCP e gravador de vídeo. Graças a duas entradas WAN, é possível conectar links redundantes (backup) à Internet, por exemplo, via LTE, graças ao U-LTE-PRO. Mas a vantagem mais importante é o SO UniFi, que lhe permite gerir toda a rede, as suas configurações a partir de um web browser ou de um telemóvel, mesmo que esteja noutro país, noutro continente! Você também pode gerenciar o UniFi Access, ou seja, abrir e fechar portas, ver imagens de câmeras de segurança no UniFi Protect e muito mais a partir de um único navegador ou aplicativo móvel.
O coração do nosso sistema é o UDM-Pro, que pode servir como roteador, switch, firewall, servidor DHCP e gravador de vídeo. Graças a duas entradas WAN, é possível conectar links redundantes (backup) à Internet, por exemplo, via LTE, graças ao U-LTE-PRO. Mas a vantagem mais importante é o SO UniFi, que lhe permite gerir toda a rede, as suas configurações a partir de um web browser ou de um telemóvel, mesmo que esteja noutro país, noutro continente! Você também pode gerenciar o UniFi Access, ou seja, abrir e fechar portas, ver imagens de câmeras de segurança no UniFi Protect e muito mais a partir de um único navegador ou aplicativo móvel.

Todos os dispositivos, switches, pontos de acesso, câmeras IP podem ser configurados a partir da interface amigável UniFi OS. Você não precisa se conectar a cada switch individualmente e configurá-lo. As configurações de um dispositivo podem ser copiadas para outro, o que poupa tempo. Isto torna o trabalho do administrador do sistema muito mais fácil. Quando novas atualizações de firmware forem lançadas para seus dispositivos, você saberá imediatamente e verá um ícone de atualização de firmware ao lado do dispositivo, que atualizará o sistema naquele dispositivo quando você clicar nele. Não há necessidade de fazer nada manualmente, tudo acontece automaticamente.
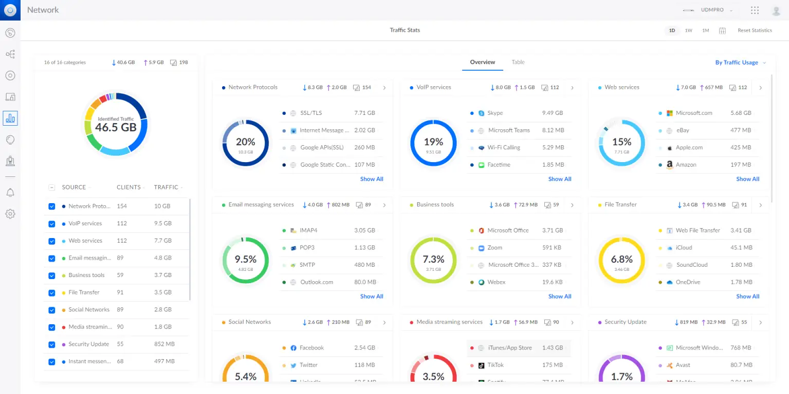
As possibilidades deste sistema são inimagináveis: além das configurações padrão da rede, é possível ver estatísticas em tempo real de uso da Internet, categorizadas. Também é possível restringir o acesso a vários recursos, tais como YouTube ou Facebook, para que os funcionários possam ser mais produtivos.
As possibilidades deste sistema são inimagináveis: além das configurações padrão da rede, é possível ver estatísticas em tempo real de uso da Internet, categorizadas. Também é possível restringir o acesso a vários recursos, tais como YouTube ou Facebook, para que os funcionários possam ser mais produtivos.












E estas não são todas as funções deste sistema, há tantas que é impossível listar todas elas agora... Vamos ver como funciona outro sistema, sob o controle do mesmo dispositivo e controlador.
UniFi Protect ou vigilância por vídeo com qualidade superior
Tornou-se uma necessidade ter um bom monitoramento no escritório ou em casa para nossa própria segurança, e às vezes apenas para lembrar onde colocamos isto ou aquilo(provavelmente aconteceu com todos).
UniFi OS permite-lhe gerir vídeos gravados, visualizar câmaras ao vivo ou configurar câmaras com uma das Ubiquiti UDM-Pro, NVR-Pro, UNVR, dependendo da sua aplicação e do número de câmaras.
UniFi Protect é uma ótima solução para gerenciar câmeras e gravações em tempo real através da nuvem, com todas as gravações armazenadas localmente no dispositivo, proporcionando excelente segurança. Você não precisa pagar pelo armazenamento em nuvem, e pode acessar suas gravações de qualquer lugar.
Instalámos o NVR-Pro na nossa rede, que pode suportar até 7 discos rígidos com uma capacidade de 16TB (isto não é um limite de discos rígidos, a Ubiquiti diz que não testam discos rígidos com capacidades maiores). Ligadas ao NVR-Pro estão 24 câmaras Ubiquiti G4 Pro, que gravam em resolução de 4K. Com esta configuração, o UDM-Pro mostra que pode armazenar os nossos dados durante 66 dias!
UniFi OS permite-lhe gerir vídeos gravados, visualizar câmaras ao vivo ou configurar câmaras com uma das Ubiquiti UDM-Pro, NVR-Pro, UNVR, dependendo da sua aplicação e do número de câmaras.
UniFi Protect é uma ótima solução para gerenciar câmeras e gravações em tempo real através da nuvem, com todas as gravações armazenadas localmente no dispositivo, proporcionando excelente segurança. Você não precisa pagar pelo armazenamento em nuvem, e pode acessar suas gravações de qualquer lugar.
Instalámos o NVR-Pro na nossa rede, que pode suportar até 7 discos rígidos com uma capacidade de 16TB (isto não é um limite de discos rígidos, a Ubiquiti diz que não testam discos rígidos com capacidades maiores). Ligadas ao NVR-Pro estão 24 câmaras Ubiquiti G4 Pro, que gravam em resolução de 4K. Com esta configuração, o UDM-Pro mostra que pode armazenar os nossos dados durante 66 dias!


Você não precisa de nenhum software especial para visualizar gravações de vídeo, basta abrir um navegador e fazer login na sua conta Ubiquiti ou através do aplicativo móvel no seu telefone e você já pode gerenciar as configurações da câmera e as gravações da câmera IP.
A procura de momentos indesejados nas filmagens de vídeo ficou muito mais fácil! O UniFi Protect irá marcar as suas filmagens quando notar movimento no quadro. Agora você não precisa gastar muito tempo procurando o momento exato que precisa, basta marcar o vídeo e você verá o que precisa no momento certo.
A procura de momentos indesejados nas filmagens de vídeo ficou muito mais fácil! O UniFi Protect irá marcar as suas filmagens quando notar movimento no quadro. Agora você não precisa gastar muito tempo procurando o momento exato que precisa, basta marcar o vídeo e você verá o que precisa no momento certo.




Além da simples gravação de vídeo, o UniFi Protect possui um grande número de configurações, desde a simples alteração da qualidade do vídeo (resolução de imagem e taxa de quadros), até o destaque de áreas específicas na imagem da câmera para um rastreamento mais claro, bem como recursos como o reconhecimento de placas de carro.
E com a nova câmera UVC-G4-PTZ, você pode ver claramente na resolução UltraHD com zoom óptico de 22x, permitindo ver a centenas de metros de distância, mesmo à noite! Estas câmaras são normalmente montadas em edifícios da cidade para monitorizar o trânsito e as zonas de trânsito congestionado.
E com a nova câmera UVC-G4-PTZ, você pode ver claramente na resolução UltraHD com zoom óptico de 22x, permitindo ver a centenas de metros de distância, mesmo à noite! Estas câmaras são normalmente montadas em edifícios da cidade para monitorizar o trânsito e as zonas de trânsito congestionado.
Acesso às salas com UniFi Access
Uma solução particularmente interessante da Ubiquiti para o controle de acesso interno é o UniFi Access. Este é um sistema de controle de acesso a portas desenvolvido usando tecnologia PoE proprietária.
Todo o sistema UniFi Access também é controlado via UniFi OS usando um navegador ou aplicativo móvel. O sistema de controle de acesso inclui um hub mestre (UA-HUB), um leitor de cartões NFC (Access Reader Lite) e um leitor de cartões NFC com tela e capacidade de comunicação bidirecional (Access Reader Pro). Uma câmara de vídeo UVC-G3-Flex opcional pode ser ligada para capacidades adicionais de gravação de imagem ou vídeo enquanto lê cartões NFC.
O Centro de Acesso pode controlar o abridor de portas com vários ajustes e horários. Sirenes, alarmes de incêndio e sensores também podem ser ligados ao Centro de Acesso.
Todo o sistema UniFi Access também é controlado via UniFi OS usando um navegador ou aplicativo móvel. O sistema de controle de acesso inclui um hub mestre (UA-HUB), um leitor de cartões NFC (Access Reader Lite) e um leitor de cartões NFC com tela e capacidade de comunicação bidirecional (Access Reader Pro). Uma câmara de vídeo UVC-G3-Flex opcional pode ser ligada para capacidades adicionais de gravação de imagem ou vídeo enquanto lê cartões NFC.
O Centro de Acesso pode controlar o abridor de portas com vários ajustes e horários. Sirenes, alarmes de incêndio e sensores também podem ser ligados ao Centro de Acesso.

O nosso sistema de acesso na Batna24 consiste em 2 Hubs de Acesso, ou seja, o acesso é feito a 2 portas. Uma porta dá acesso ao arquivo onde documentos importantes são armazenados e o acesso restrito é uma necessidade nesta sala. Além do acesso restrito, temos também um registro completo de eventos de quem entrou na sala e quando.
A segunda porta com controle de acesso está localizada na entrada principal do edifício, por onde os funcionários com cartões de acesso NFC podem passar. No entanto, o Access Reader Pro permite aos mensageiros ou visitantes estabelecer uma ligação vídeo às duas linhas de comunicação, e o administrador de controlo de acesso pode abrir a porta utilizando uma aplicação móvel.
A segunda porta com controle de acesso está localizada na entrada principal do edifício, por onde os funcionários com cartões de acesso NFC podem passar. No entanto, o Access Reader Pro permite aos mensageiros ou visitantes estabelecer uma ligação vídeo às duas linhas de comunicação, e o administrador de controlo de acesso pode abrir a porta utilizando uma aplicação móvel.

Sumário
Nunca nos arrependemos de ter instalado dispositivos Ubiquiti e estamos prestes a explicar porquê. A maior vantagem é que todos os dispositivos podem ser gerenciados e configurados a partir de um único sistema operacional UniFi, sem a necessidade de estar fisicamente perto dos dispositivos. Com o interruptor USW-Pro-Aggregation, todos os nossos interruptores têm uma enorme largura de banda sobre fibra.
Mesmo na fase de projeto da rede, utilizando a ferramenta UniFi Design Center, sabíamos exatamente quanto e que tipo de equipamento precisávamos e onde ele estava localizado. Na configuração atual, nossa rede é composta por 10 switches (48 portas e 24 portas) com e sem PoE, 24 câmeras de vídeo, 2 gravadores de vídeo, 11 pontos de acesso com Wi-Fi 6. No entanto, isso não significa o fim do projeto, pois temos outros projetos de monitoramento em mente, e o sistema UniFi permite uma fácil escalabilidade. Dúzias ou centenas de gigabytes passam por todo o sistema todos os dias, e o equipamento manuseia-o perfeitamente!
Mesmo na fase de projeto da rede, utilizando a ferramenta UniFi Design Center, sabíamos exatamente quanto e que tipo de equipamento precisávamos e onde ele estava localizado. Na configuração atual, nossa rede é composta por 10 switches (48 portas e 24 portas) com e sem PoE, 24 câmeras de vídeo, 2 gravadores de vídeo, 11 pontos de acesso com Wi-Fi 6. No entanto, isso não significa o fim do projeto, pois temos outros projetos de monitoramento em mente, e o sistema UniFi permite uma fácil escalabilidade. Dúzias ou centenas de gigabytes passam por todo o sistema todos os dias, e o equipamento manuseia-o perfeitamente!
